This is one of those rare homes that is woven into the very fabric of its city’s history. Built circa 1886, this isn’t just a Victorian mansion; it’s the personal residence of Thomas G. Hawkes, a titan of Corning’s defining Gilded Age industry: fine cut glass. You can feel that proud legacy of artistry and ambition in every room.

The grandeur is immediate, from the large welcoming foyer to the exquisite original woodwork that speaks to an era of unparalleled craftsmanship. The house is anchored by seven original fireplaces, each one a historic centerpiece for the grand rooms.
But the true soul of the home is its stunning stained glass. In this house, the glass isn’t just an architectural detail; it’s a personal testament to the life and work of the man who built it, a constant, colorful reminder of Corning’s heritage.

What’s truly special is how this home has been thoughtfully prepared for the 21st century. A recent, respectful renovation brought in a new boiler and a beautifully modern kitchen bathed in natural light, yet it was done with an artist’s touch.
The project painstakingly preserved the integrity of the irreplaceable stained glass windows, blending modern efficiency with historic artistry.

With the green expanse of Canfield Park as its front lawn, the setting is as magnificent as the house itself. This is a profound opportunity to become the next steward of a true Corning treasure, a landmark built for glass royalty.
📉 Price Cut: $15,000
🏡 Now $280,000
📍 24 W 2nd St, Corning, NY 14830
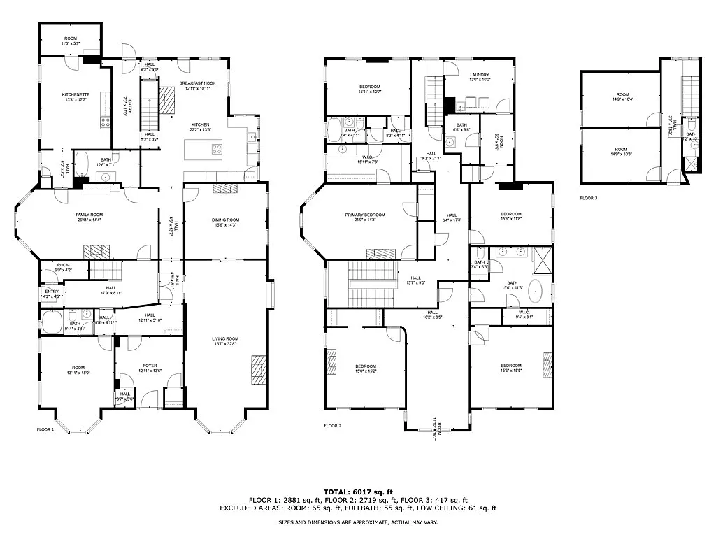
🛏️ 5 Bedrooms
🛁 3 Bathrooms
📐 6,806 Sq Ft
🏗️ Built in 1900
🌳 0.48 Acres Lot



Check more on Zillow